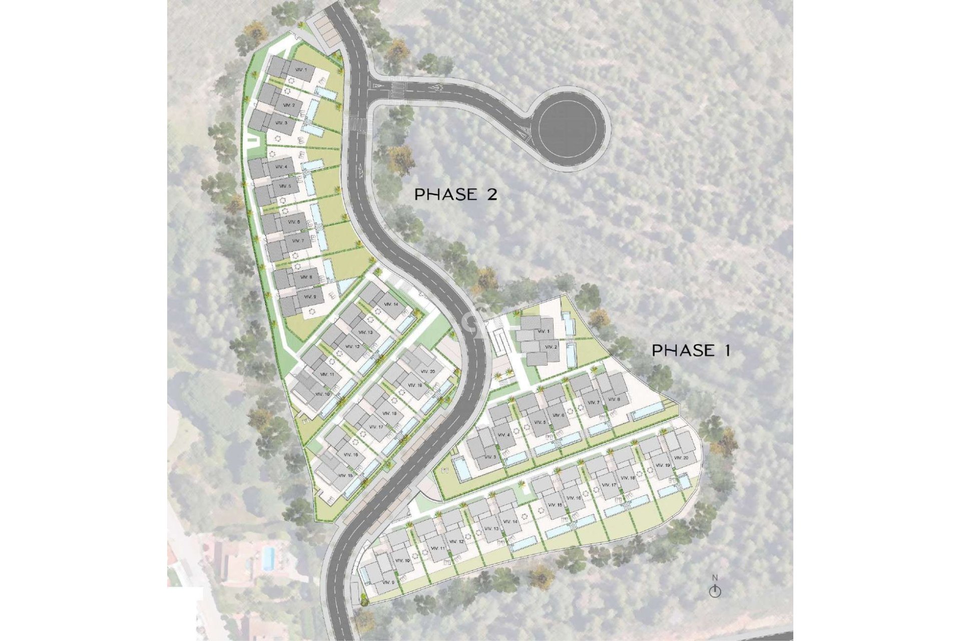
Drawing inspiration from the silhouette of traditional architecture, this project reinterprets classic geometric forms to blend seamlessly with the surrounding vegetation. A strong connection to nature is at the heart of the design, reflecting its energy and dynamism in every detail. The central feature is a sloping roof that flows with movement, evoking the sensation of dancing with the coastal breeze. This unique design creates a distinctive skyline on the Costa del Sol, giving each villa its own singular identity. Following the "Less is more" philosophy, the design emphasizes clean lines and elegant aesthetics. Materials like natural wood are thoughtfully integrated to enhance the connection with the surroundings, adding warmth and uniqueness to the project. The staircase, designed as a sculptural masterpiece, transforms the living area into a sophisticated gallery. These 4-bedroom villas are carefully designed to optimize space and encourage fluid interactions between different areas. These new constructions offer an innovative take on residential design, combining functionality with contemporary aesthetics. They incorporate modern technology and high-quality materials, ensuring maximum comfort in an exclusive setting. The villas, priced from €1,450,000 and covering 356 m², provide spacious and luxurious living environments. Located in the vibrant town of La Cala de Mijas, these residences offer an unparalleled quality of life. With stunning natural surroundings and first-class amenities, residents can enjoy the best of the Costa del Sol, from idyllic beaches to a rich cultural and gastronomic scene.