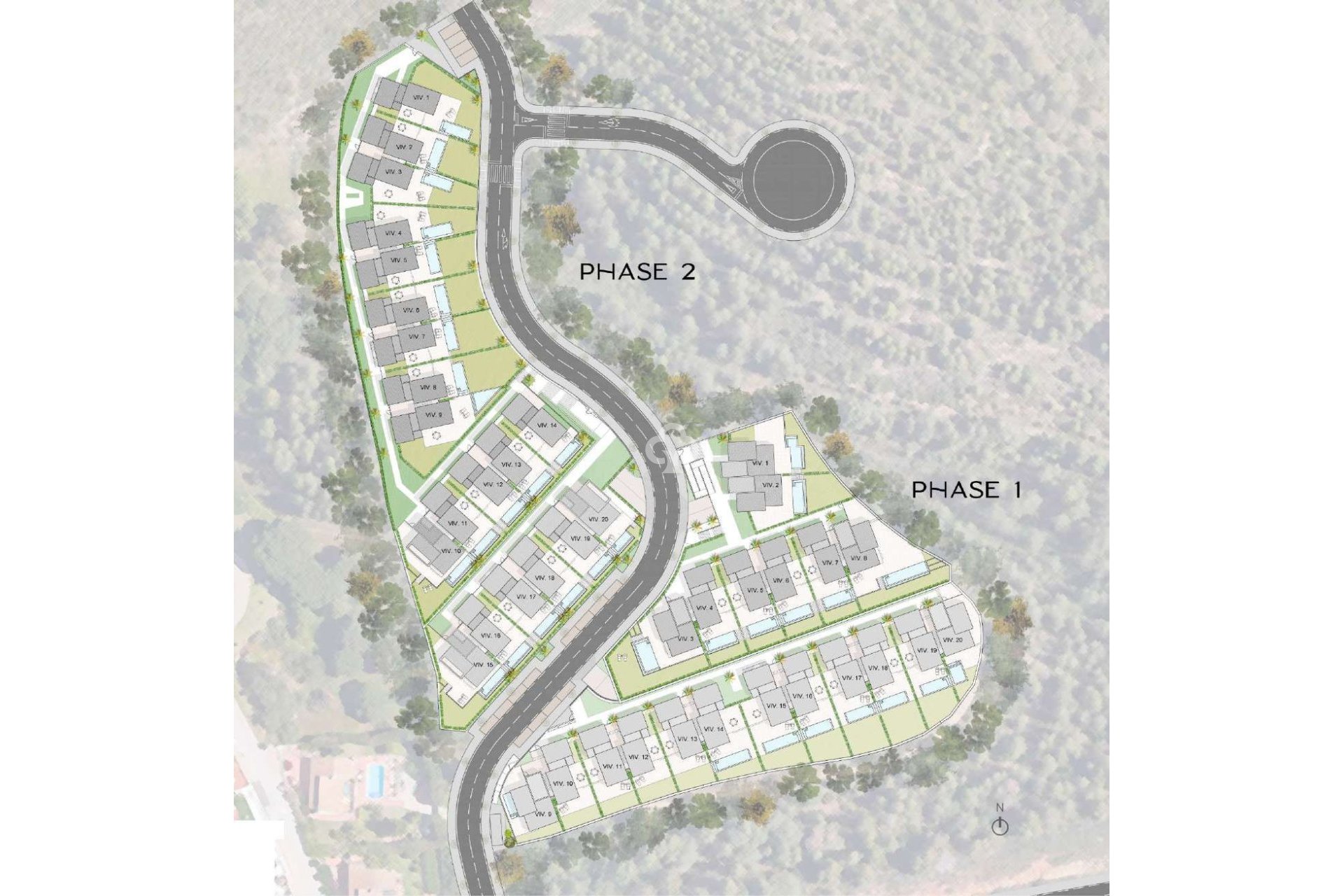
Projektin arkkitehtuuri saa vaikutteita perinteisistä linjoista mutta tulkitsee klassisia geometrisia muotoja uudella tavalla, sulautuen saumattomasti ympäröivään kasvillisuuteen. Yhteys luontoon on keskeinen piirre, joka heijastuu jokaisessa yksityiskohdassa, tuoden energiaa ja dynaamisuutta suunnitteluun. Keskusosana toimii liikkuvasti laskeva kalteva katto, joka herättää tunteen tanssista merituulen kanssa. Tämä yksityiskohta luo ainutlaatuisen horisontin, antaen jokaiselle huvilalle oman, erottuvan identiteetin. "Vähemmän on enemmän" -filosofian mukaisesti suunnittelu keskittyy puhtaisiin linjoihin ja eleganttiin estetiikkaan. Luonnonmateriaalit, kuten puu, on otettu mukaan strategisesti, vahvistaen yhteyttä ympäristöön ja tuoden lämpöä sekä ainutlaatuisuutta kokonaisuuteen. Porraskäytävä toimii veistoksellisena elementtinä, joka muuntaa asuintilan hienostuneeksi galleriaksi. Nämä neljän makuuhuoneen huvilat on suunniteltu optimoimaan tilaa ja edistämään sujuvaa vuorovaikutusta eri alueiden välillä. Nämä uutuuttaan hohkaavat rakennukset tarjoavat innovatiivisen näkemyksen asuinsuunnittelusta, yhdistäen toiminnallisuuden ja modernin estetiikan. Ne sisältävät viimeisintä teknologiaa ja korkealuokkaisia materiaaleja, varmistaen poikkeuksellisen mukavuuden eksklusiivisessa ympäristössä. Hinnaltaan 1 450 000 € ja pinta-alaltaan 356 m², nämä huvilat tarjoavat tilavia ja ylellisiä elämyksiä täynnä eleganssia. Sijaiten La Cala de Mijasin eloisassa miljöössä, nämä asunnot tarjoavat verratonta elämänlaatua. Henkeäsalpaavan luonnon ja huipputason palveluiden ympäröimänä, asukkaat voivat nauttia kaikesta, mitä Costa del Solilla on tarjota: paratiisimaisista rannoista monipuoliseen kulttuuri- ja ruokakulttuuriin.