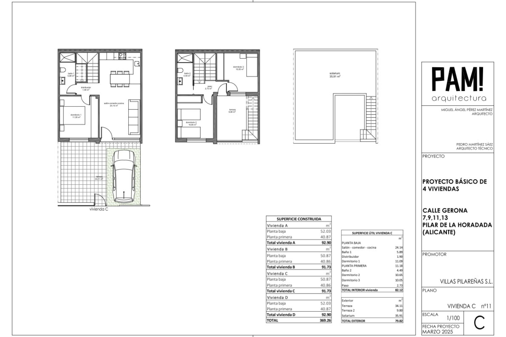
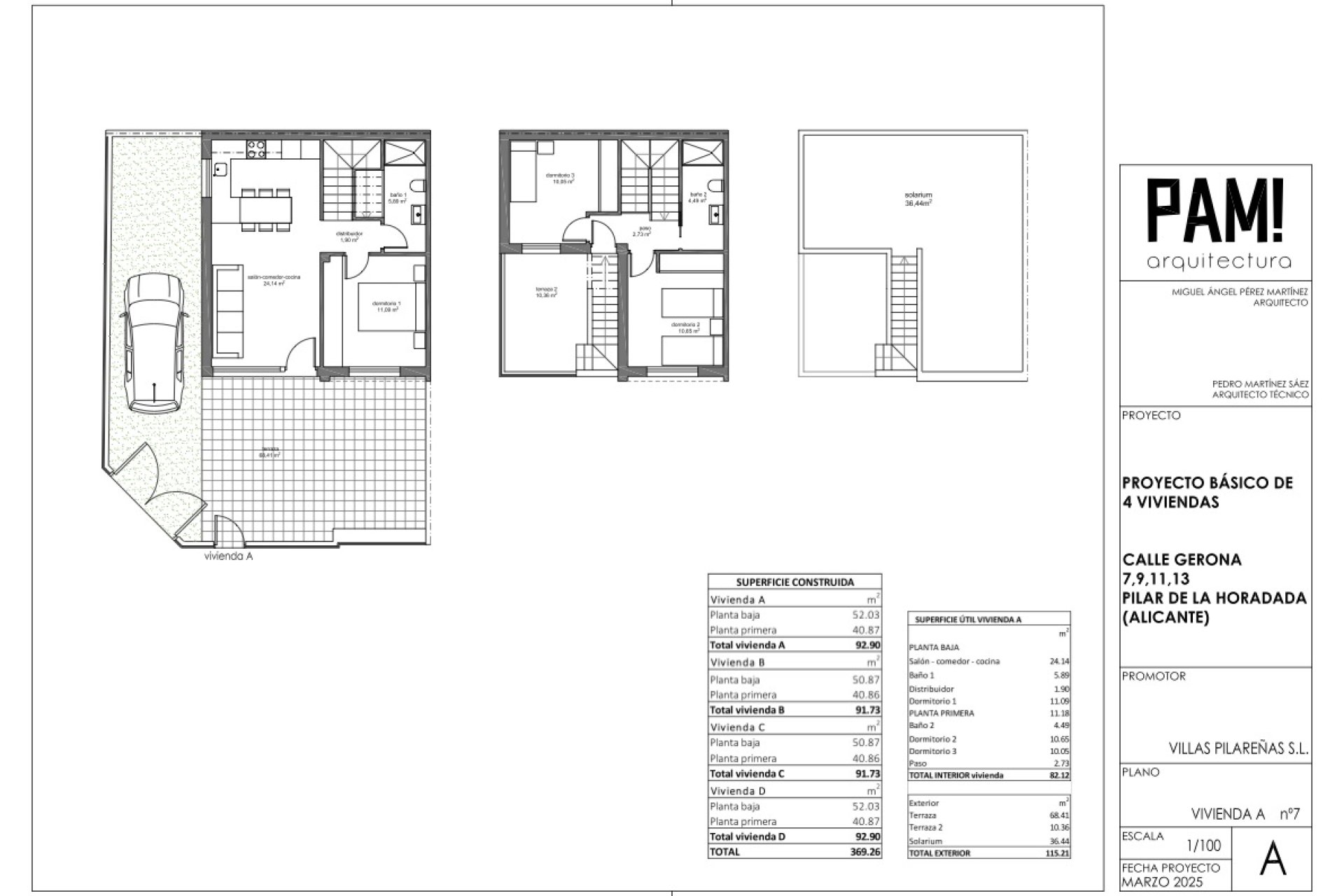
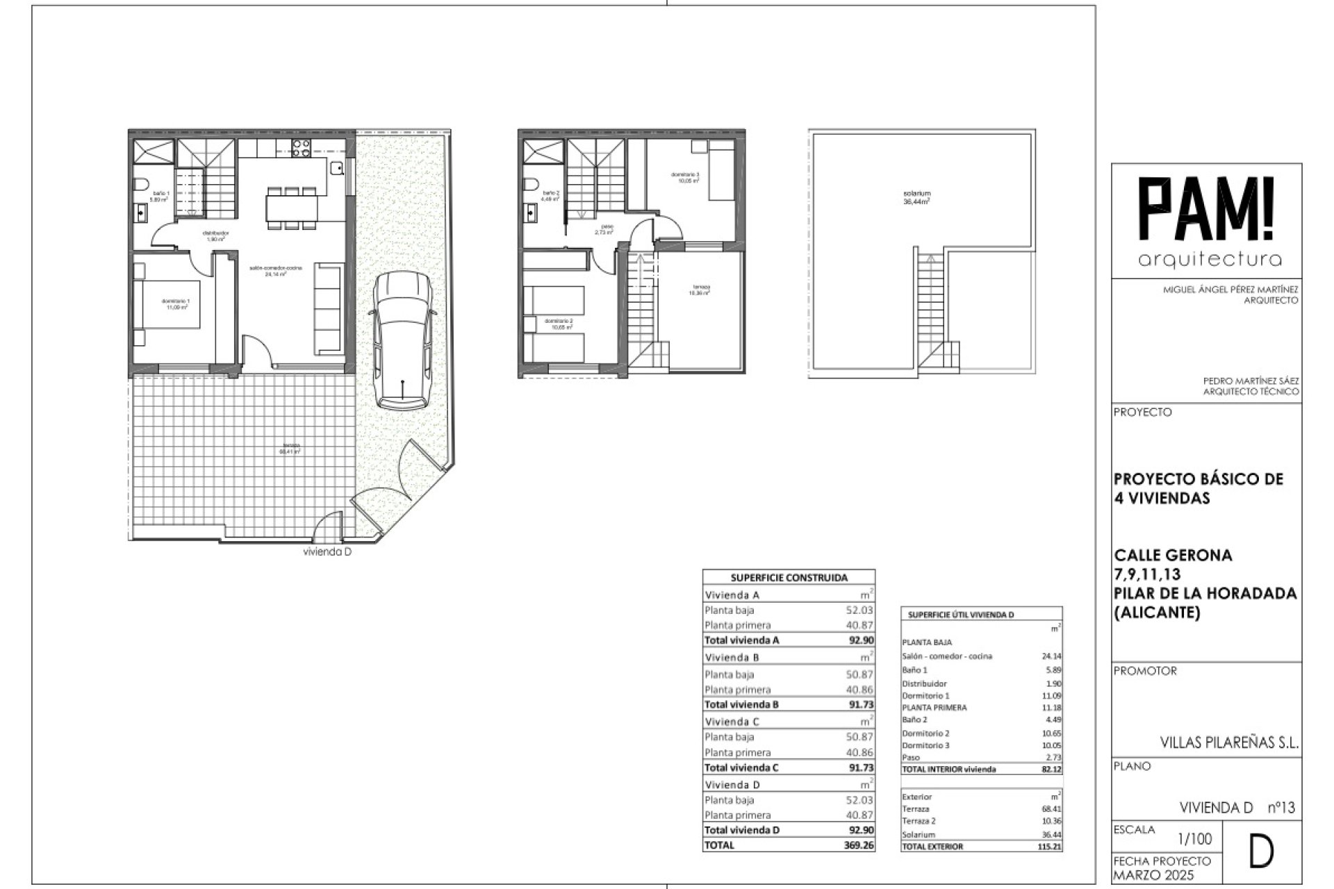
đĄ Moderna nybyggnadsvillor med valfri privat pool i Pilar de la Horadada Exklusiv lansering av endast fyra samtida bostĂ€der Vi presenterar en unik möjlighet att förvĂ€rva en av de fyra nybyggda villorna i ett lugnt bostadsomrĂ„de i Pilar de la Horadada, en charmig kommun i södra Costa Blanca. Dessa fastigheter, rad- och parhus, har designats med komfort, energieffektivitet och en modern medelhavslivsstil i Ă„tanke. BelĂ€gna endast 3 km frĂ„n havet och bara nĂ„gra minuter frĂ„n stadens centrum, kombinerar de lugn och nĂ€rhet till alla bekvĂ€mligheter. Modern design med utomhusytor för att njuta Ă„ret runt Varje villa har 3 sovrum och 2 kompletta badrum fördelade pĂ„ en enda vĂ„ning, med rymliga och ljusa interiörer som maximerar det naturliga ljusinslĂ€ppet. Den öppna designen kopplar samman vardagsrum, kök och matsal i ett funktionellt och inbjudande rum. Alla bostĂ€der har privat trĂ€dgĂ„rd och en takterrass med förinstallation för ett utomhuskök, perfekt för att dra nytta av regionens soliga klimat Ă„ret runt. Dessutom finns möjlighet att lĂ€gga till en privat pool och parkeringsplats pĂ„ tomten. Kvalitetsmaterial och modern finish Dessa bostĂ€der har byggts med utvalda material för att erbjuda hĂ„llbarhet, estetik och effektivitet: FörstĂ€rkt ytterdörr för ökad sĂ€kerhetFönster i PVC med termiskt avbrott och dubbelglasFullt möblerade badrum, inklusive duschskĂ€rmarGolvvĂ€rme i bĂ„da badrummenAerotermiskt system för sanitĂ€rt varmvatten, effektivt och miljövĂ€nligtFörinstallation av luftkonditionering via kanaler i hela bostaden En plats som har allt Pilar de la Horadada Ă€r en by med tradition och liv. Dess omgivning kombinerar bostadsro med alla nödvĂ€ndiga bekvĂ€mligheter: stormarknader, restauranger, vĂ„rdcentraler, gröna omrĂ„den, idrottsanlĂ€ggningar och ett aktivt kulturliv. StrĂ€nderna i Torre de la Horadada och Mil Palmeras, med kristallklart vatten och blĂ„ flagg, ligger bara nĂ„gra minuter bort med bil. Förutom det strategiska lĂ€get finns det enkel tillgĂ„ng till golfbanor, köpcentrum och flygplatserna i Murcia och Alicante, vilket gör dessa villor till ett utmĂ€rkt val för bĂ„de permanent boende, semester eller investering. Förbindelser och nĂ€rliggande tjĂ€nster: StrĂ€nderna i Torre de la Horadada och Mil Palmeras â 3 km (5 min)Golfbana Lo Romero â 7 km (10 min)Köpcentrum La Zenia Boulevard â 15 km (15 min)Flygplats Corvera (Murcia) â 40 km (40 min)Alicantes internationella flygplats â 55 km (55 min) Lev den medelhavsstil du alltid drömt om Dessa villor erbjuder en utmĂ€rkt balans mellan kvalitet och pris i ett vĂ€xande omrĂ„de med hög efterfrĂ„gan. De Ă€r perfekta för dem som letar efter ett modernt, effektivt och vĂ€lbelĂ€get hem, oavsett om det Ă€r för att bo Ă„ret runt, njuta av semestern eller investera med hög avkastning. Pris frĂ„n 249.900 ⏠Missa inte denna möjlighet! Kontakta oss idag för mer information, planer eller för att boka ett personligt besök.