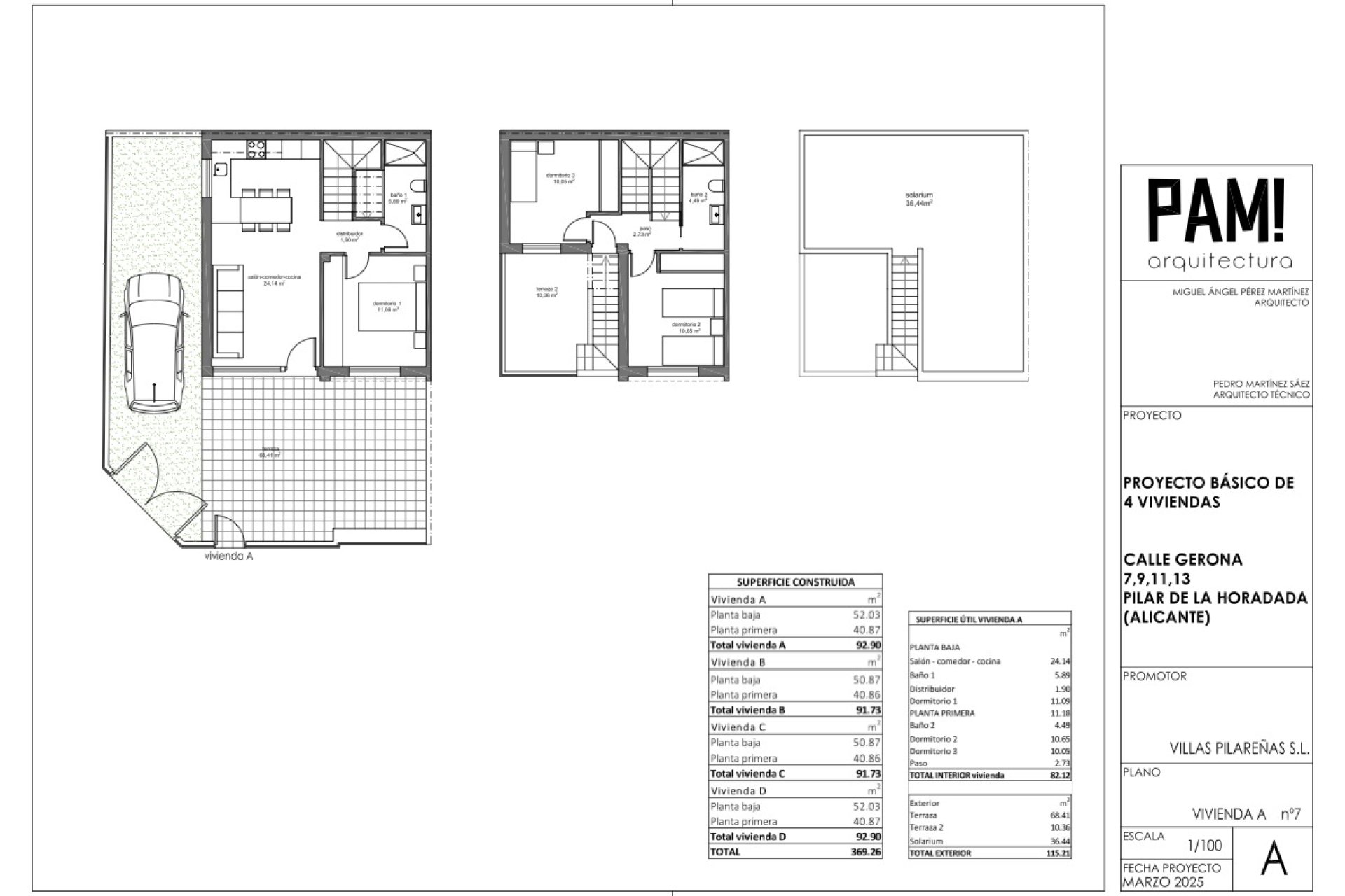
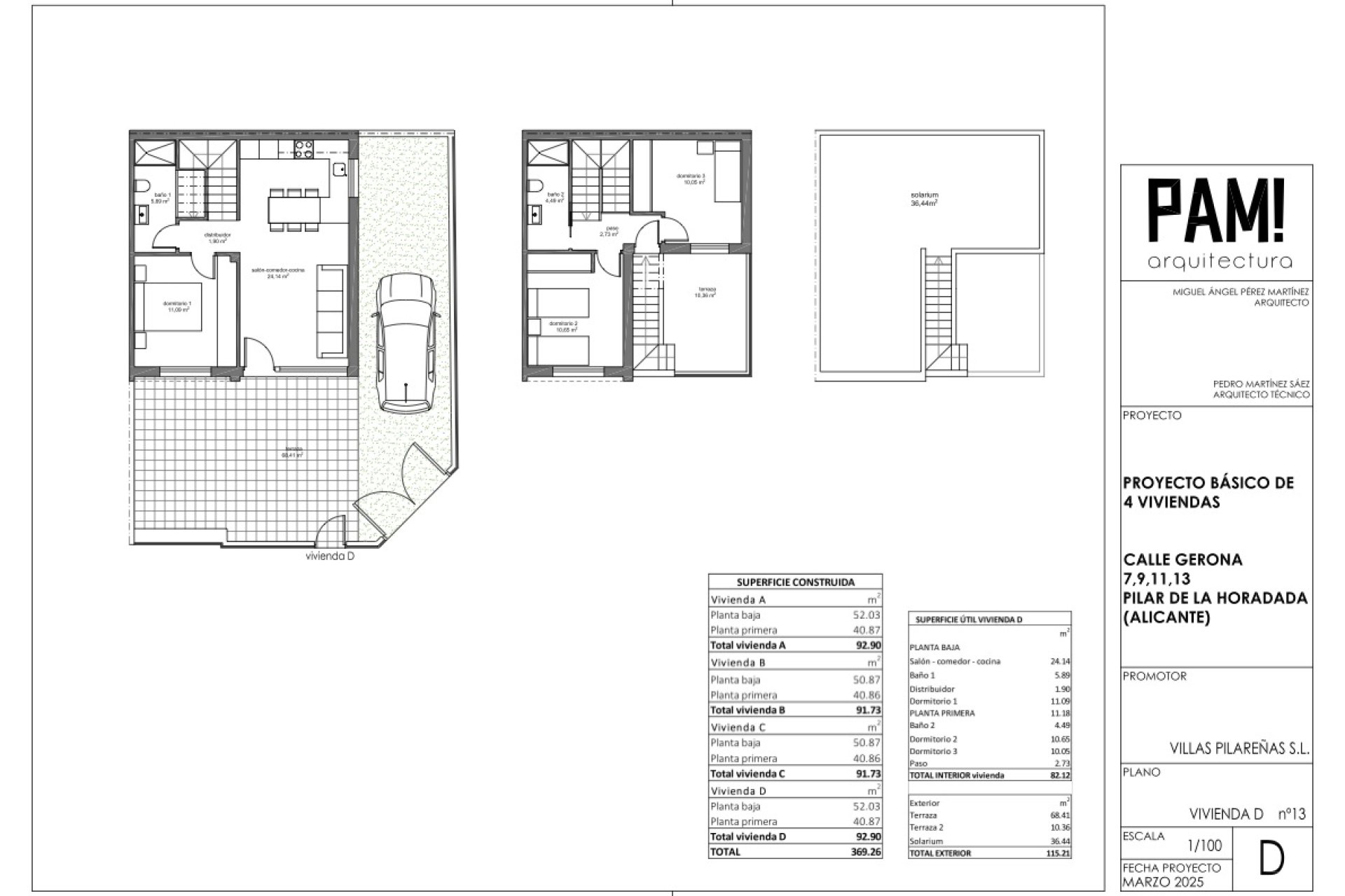
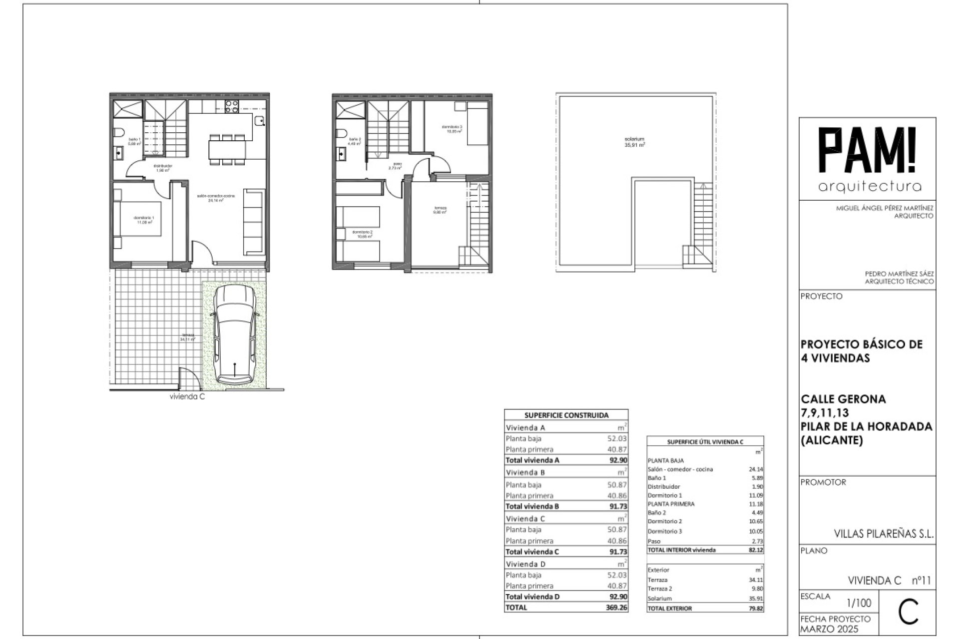
🏡 Moderne Neubauvillen mit optionalem privaten Pool in Pilar de la Horadada Exklusive Promotion von nur 4 zeitgenössischen Häusern Wir präsentieren eine einzigartige Gelegenheit, eine der vier neu gebauten Villen in einem ruhigen Wohngebiet von Pilar de la Horadada zu erwerben, einem charmanten Ort im Süden der Costa Blanca. Diese aneinandergrenzenden und halb freistehenden Immobilien wurden im Hinblick auf Komfort, Energieeffizienz und einen modernen mediterranen Lebensstil entworfen. Sie liegen nur 3 km vom Meer entfernt und nur wenige Minuten vom Stadtzentrum, vereinen Ruhe und Nähe zu allen Dienstleistungen. Aktuelles Design mit Außenbereichen, die das ganze Jahr über genutzt werden können Jede Villa verfügt über 3 Schlafzimmer und 2 voll ausgestattete Badezimmer, verteilt auf einer Etage, mit offenen und hellen Innenräumen, die das natürliche Licht maximieren. Das offene Design verbindet Wohn-, Küchen- und Essbereich in einem funktionalen und einladenden Raum. Alle Häuser verfügen über einen privaten Garten und ein Dachsolarium mit Vorinstallation für eine Außenküche, ideal, um das sonnige Klima der Region das ganze Jahr über zu nutzen. Darüber hinaus besteht die Möglichkeit, einen privaten Pool und einen Parkplatz auf dem Grundstück hinzuzufügen. Qualitätsmaterialien und moderne Oberflächen Diese Wohnungen wurden mit ausgewählten Materialien gebaut, um Haltbarkeit, Ästhetik und Effizienz zu bieten: Gepanzerte Eingangstür für mehr SicherheitFenster aus PVC mit thermischer Brückenunterbrechung und DoppelverglasungVollständig möblierte Bäder, inklusive DuschabtrennungenFußbodenheizung in beiden BädernAerothermie-System für warmes Wasser, effizient und umweltfreundlichVorinstallation von Klimaanlagenkanälen im gesamten Haus Ein Ort, der alles hat Pilar de la Horadada ist ein Ort mit Tradition und Leben. Die Umgebung kombiniert eine ruhige Wohnlage mit allen notwendigen Dienstleistungen: Supermärkte, Restaurants, medizinische Zentren, Grünflächen, Sporteinrichtungen und ein aktives Kulturangebot. Die Strände von Torre de la Horadada und Mil Palmeras, mit kristallklarem Wasser und blauer Flagge, sind nur wenige Minuten mit dem Auto entfernt. Außerdem ermöglicht die strategische Lage einen einfachen Zugang zu Golfplätzen, Einkaufszentren und den Flughäfen Murcia und Alicante, was diese Villen zu einer hervorragenden Wahl sowohl für den dauerhaften Wohnsitz als auch für ein Zweitwohnsitz oder eine Investition macht. Verbindungen und nahegelegene Dienstleistungen: Strände von Torre de la Horadada und Mil Palmeras – 3 km (5 min)Golfplatz Lo Romero – 7 km (10 min)Einkaufszentrum La Zenia Boulevard – 15 km (15 min)Flughafen Corvera (Murcia) – 40 km (40 min)Internationaler Flughafen Alicante – 55 km (55 min) Leben Sie den mediterranen Lebensstil, von dem Sie immer geträumt haben Diese Villen bieten ein ausgezeichnetes Preis-Leistungs-Verhältnis in einem aufstrebenden und stark nachgefragten Gebiet. Sie sind perfekt für diejenigen, die ein modernes, effizientes und gut gelegenes Zuhause suchen, sei es, um das ganze Jahr über dort zu leben, die Ferien zu genießen oder mit hoher Rentabilität zu investieren. Preis ab 249.900 € Verpassen Sie nicht diese Gelegenheit! Kontaktieren Sie uns noch heute für weitere Informationen, Grundrisse oder um einen persönlichen Besichtigungstermin zu vereinbaren.