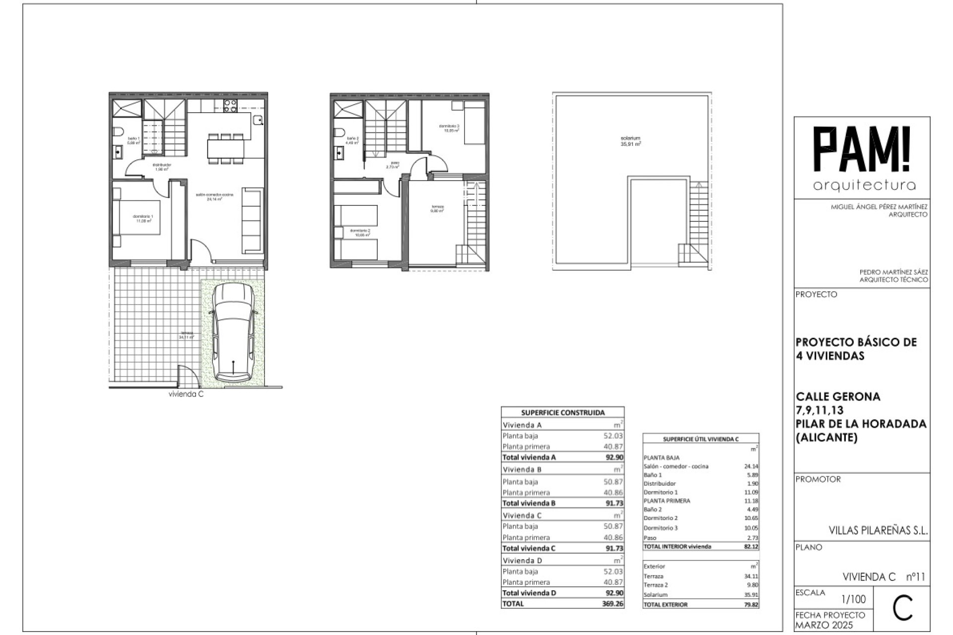
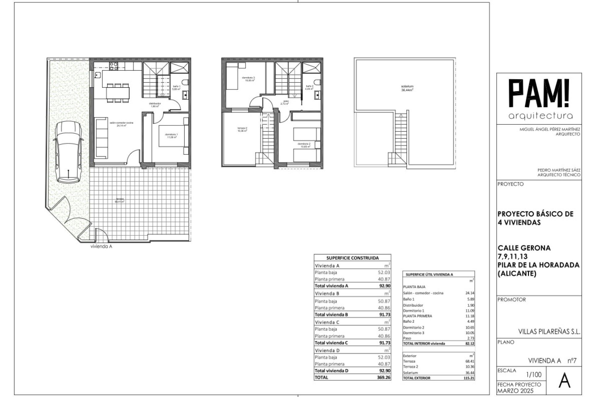
🏡 Villas modernas de nueva construcción con piscina privada opcional en Pilar de la Horadada Promoción exclusiva de solo 4 viviendas contemporáneas Presentamos una oportunidad única de adquirir una de las cuatro villas de nueva construcción en una tranquila zona residencial de Pilar de la Horadada, un encantador municipio al sur de la Costa Blanca. Estas propiedades, adosadas y pareadas, han sido diseñadas pensando en la comodidad, la eficiencia energética y un estilo de vida mediterráneo moderno. Situadas a tan solo 3 km del mar y a pocos minutos del centro urbano, combinan tranquilidad y proximidad a todos los servicios. Diseño actual con espacios exteriores para disfrutar todo el año Cada villa cuenta con 3 dormitorios y 2 baños completos distribuidos en una sola planta, con interiores diáfanos y luminosos que maximizan la entrada de luz natural. El diseño abierto conecta salón, cocina y comedor en un espacio funcional y acogedor. Todas las viviendas disponen de jardín privado y un solárium en la azotea con preinstalación para una cocina exterior, ideal para aprovechar el clima soleado de la región durante todo el año. Además, se ofrece la posibilidad de añadir una piscina privada y plaza de aparcamiento en la parcela. Materiales de calidad y acabados modernos Estas viviendas han sido construidas con materiales seleccionados para ofrecer durabilidad, estética y eficiencia: Puerta de entrada acorazada para una mayor seguridadVentanas en PVC con rotura de puente térmico y doble acristalamientoCuartos de baño totalmente amueblados, con mamparas de ducha incluidasCalefacción por suelo radiante en ambos bañosSistema aerotérmico para agua caliente sanitaria, eficiente y ecológicoPreinstalación de aire acondicionado por conductos en toda la vivienda Una ubicación que lo tiene todo Pilar de la Horadada es un pueblo con tradición y vida. Su entorno combina tranquilidad residencial con todos los servicios necesarios: supermercados, restaurantes, centros médicos, zonas verdes, instalaciones deportivas y una oferta cultural activa. Las playas de Torre de la Horadada y Mil Palmeras, con aguas cristalinas y bandera azul, están a solo unos minutos en coche. Además, su ubicación estratégica permite un fácil acceso a campos de golf, centros comerciales y los aeropuertos de Murcia y Alicante, lo que convierte a estas villas en una excelente opción tanto para residencia habitual como para segunda vivienda o inversión. Conexiones y servicios cercanos: Playas de Torre de la Horadada y Mil Palmeras – a 3 km (5 min)Campo de golf Lo Romero – a 7 km (10 min)Centro comercial La Zenia Boulevard – a 15 km (15 min)Aeropuerto de Corvera (Murcia) – a 40 km (40 min)Aeropuerto Internacional de Alicante – a 55 km (55 min) Viva el estilo de vida mediterráneo que siempre ha soñado Estas villas ofrecen una excelente relación calidad-precio en una zona en crecimiento y con alta demanda. Son perfectas para quienes buscan un hogar moderno, eficiente y bien ubicado, ya sea para vivir todo el año, disfrutar de las vacaciones o invertir con alta rentabilidad. Precio desde 249.900 € ¡No deje pasar esta oportunidad! Contáctenos hoy mismo para más información, planos o para agendar una visita personalizada.