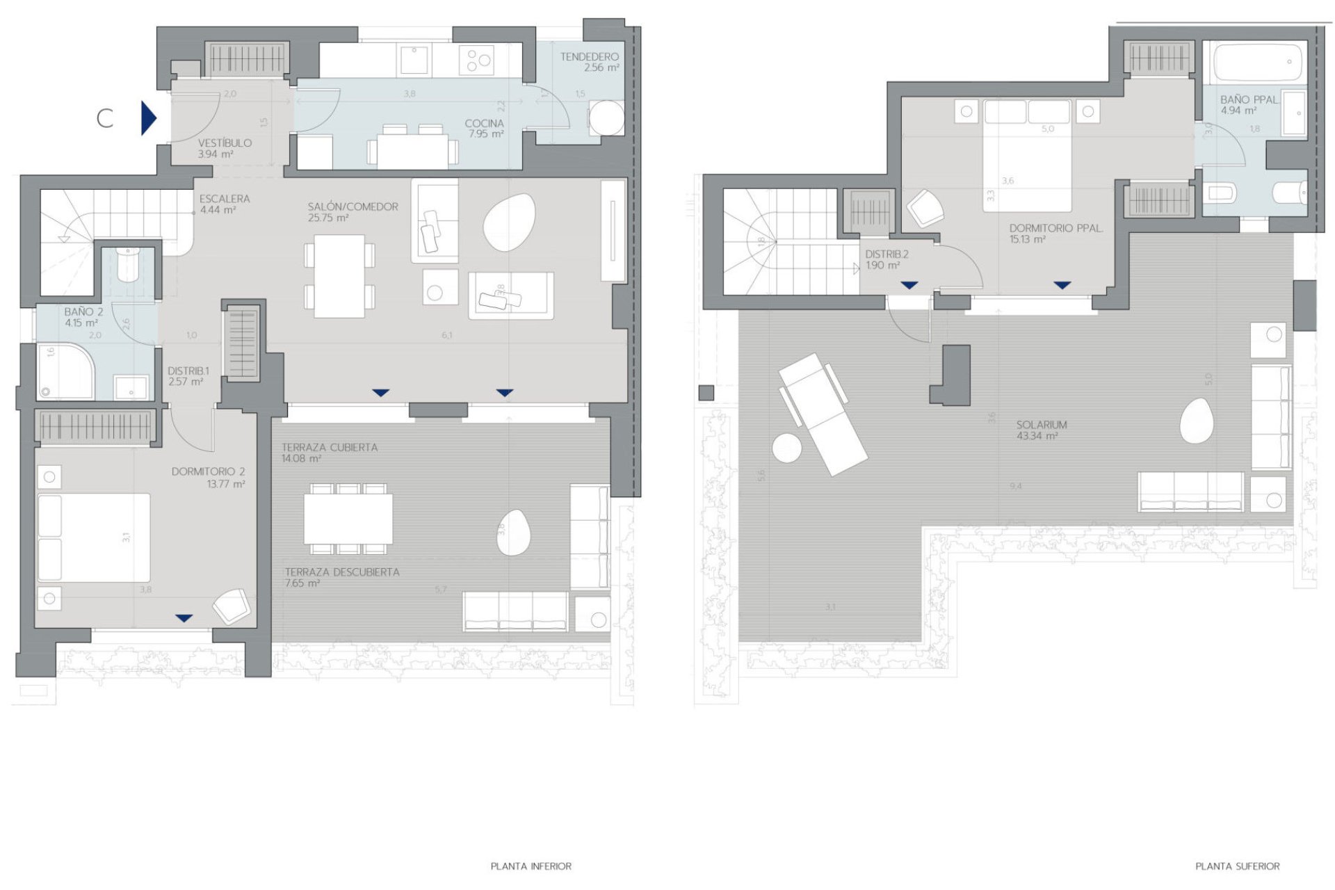
Construction is underway for a new residential project located in Estepona. This development comprises 90 high-quality homes, featuring between one and two bedrooms, all equipped with a parking space and storage room. The exclusive complex is gated to ensure the security and privacy of its residents. These homes are thoughtfully designed to harmonize with the natural surroundings. Interiors extend seamlessly to terraces, enhancing brightness and creating a sense of spaciousness. The residential area offers communal spaces, including two salt chlorination swimming pools, a multi-sport court, a social club for recreational and sports activities, as well as extensive green areas. This new development offers a true oasis amidst nature. It is the perfect place to enjoy tranquility while still being conveniently close to a variety of outdoor sports activities, owing to its proximity to golf courses and the stunning beaches of Estepona. The price range of these exquisite homes ranges from 253,000 € to 407,000 €, with surface areas spanning from 90 m² to 140 m², catering to diverse needs and preferences. Living in Estepona means embracing a lifestyle rich in both relaxation and activity. Known for its beautiful weather and vibrant community, Estepona offers a blend of traditional charm and modern amenities. Residents can indulge in a wealth of cultural events, dining options, and scenic spots, making it an ideal location for families and individuals alike.