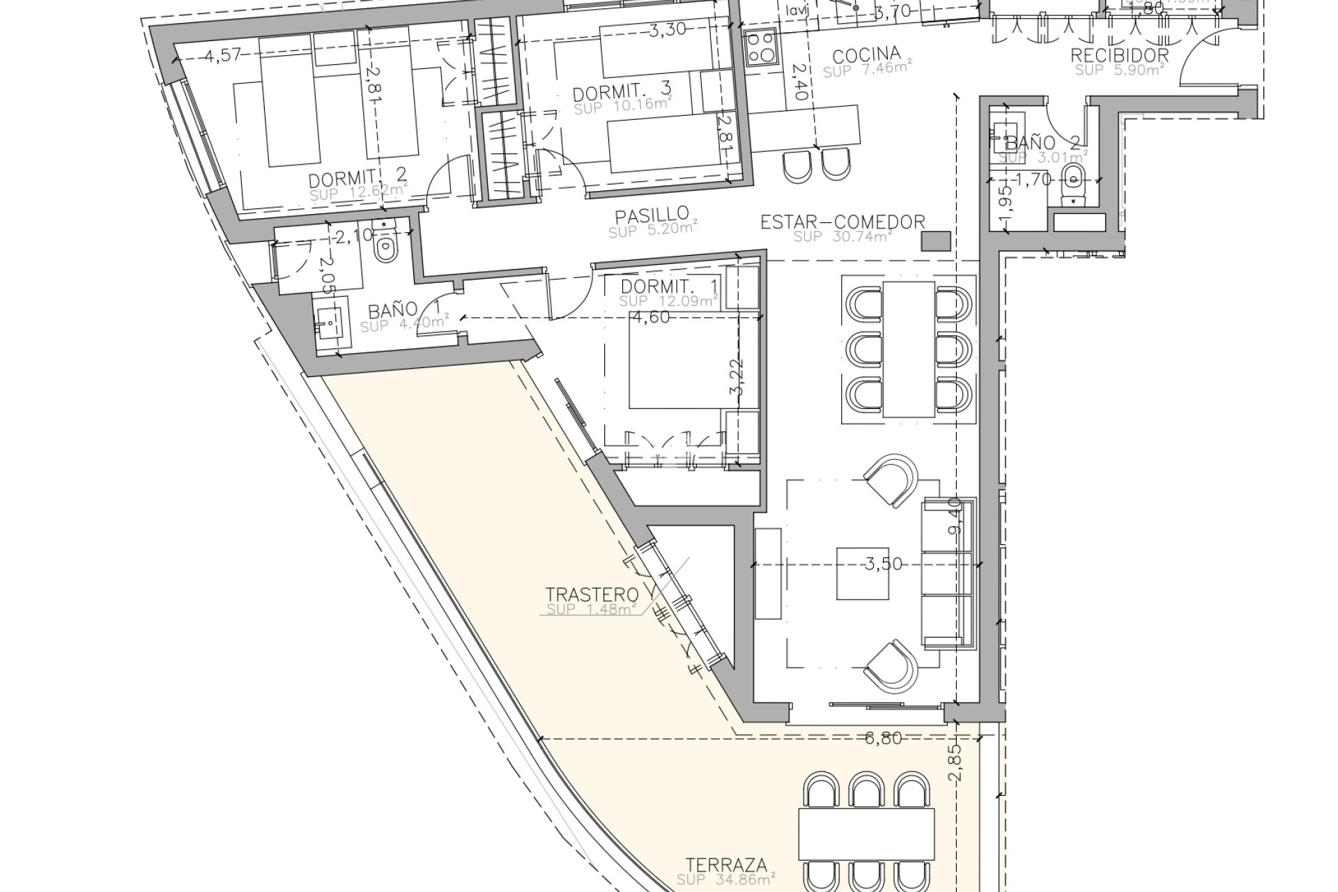
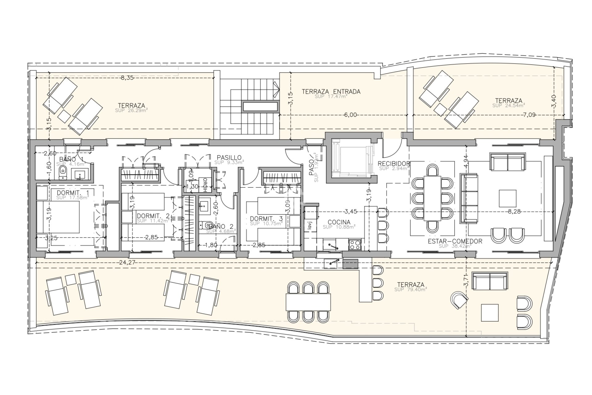
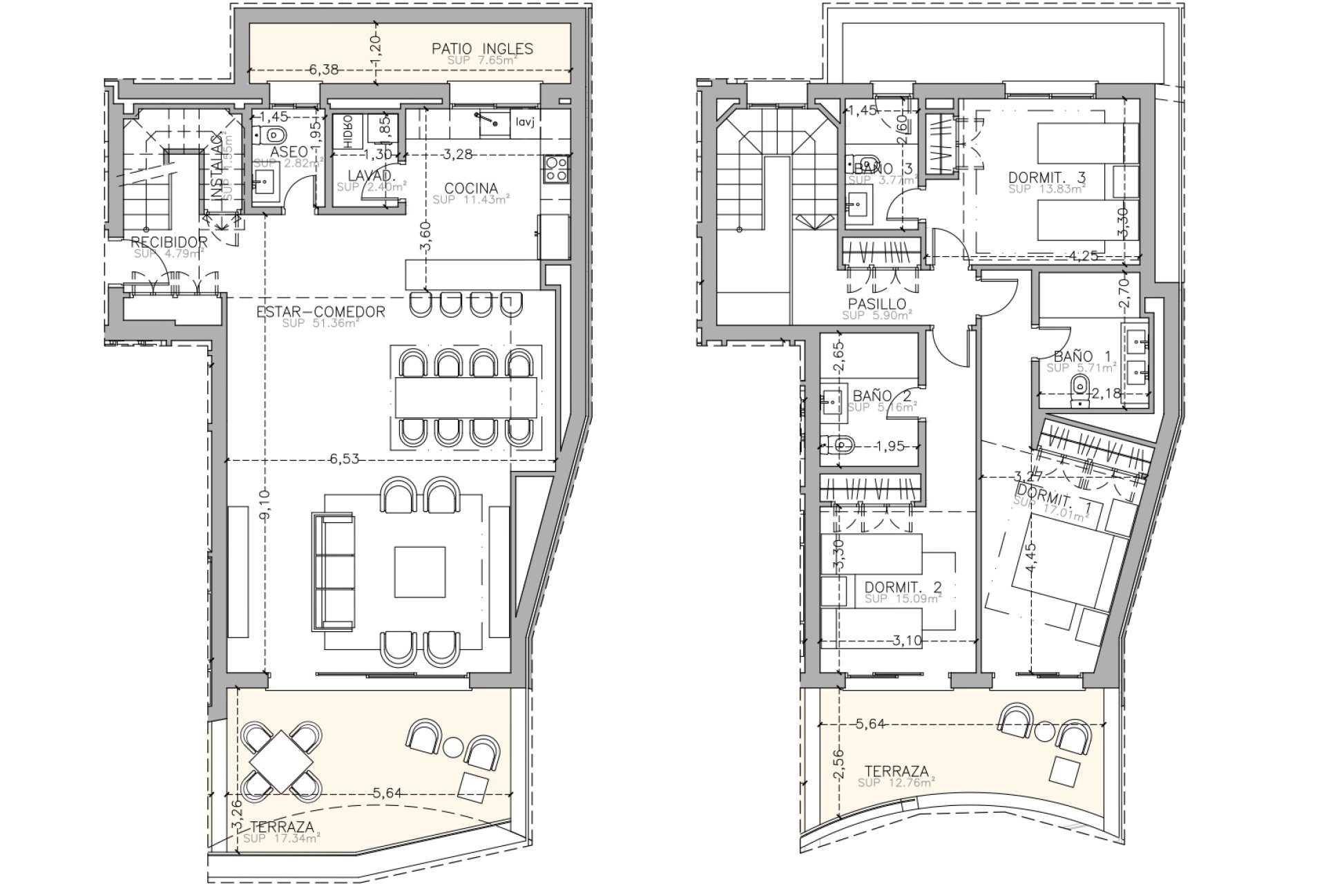
Tämä uusi asuinalue tarjoaa kolmen makuuhuoneen huoneistoja ja kattohuoneistoja, jotka uudistavat Välimeren elämäntyyliä Costa del Solin etuoikeutetussa sijainnissa. Sijoittuneena alueen korkealle kohtaan, tämä ympäristö on ihanteellinen niille, jotka etsivät poikkeuksellista asuinpaikkaa ylellisessä ympäristössä. Ympäröivä yli 70 golfkenttää ja 300 aurinkoista päivää vuodessa, keskimääräisellä 20°C lämpötilalla, tarjoaa laajan valikoiman kulttuuri-, urheilu-, viihde- ja gastronomisia mahdollisuuksia. Tämän modernin projektin rakennuslupa on jo myönnetty, ja se on parhaillaan rakenteilla. Se on suunniteltu tarjoamaan maksimaalista mukavuutta ja turvallisuutta, ja siinä on poikkeukselliset yhteistilat, joihin kuuluvat muun muassa uima-allas, puutarhat, modernille ammattilaisille sopiva yhteistyötila ja hyvin varustettu kuntosali. Kompleksiin kuuluu myös jatkuva kameravalvonta ja vastaanottopalvelu. Asunnot erottuvat elegantilla ja mukavalla suunnittelullaan, suurilla ikkunoillaan ja terasseillaan, jotka tarjoavat upeat näkymät ympäristöön. Amerikkalaistyyliset keittiöt ovat täysin varusteltuja ja niitä voi muokata omien mieltymysten mukaan, tarjoten monia tyylivaihtoehtoja ja korkealaatuisia viimeistelyjä. Näiden asuntojen arkkitehtuuri tukee valoisia ja avoimia tiloja, jotka ovat ihanteellisia nauttimaan eräästä maailman parhaista sijainneista. Hintahaarukka 650 000 € - 1 495 000 € ja pinta-alat vaihtelevat 103 m²:stä 201 m²:iin, nämä kiinteistöt tarjoavat ainutlaatuisen mahdollisuuden nauttia Marbellan elämäntyylistä parhaimmillaan.