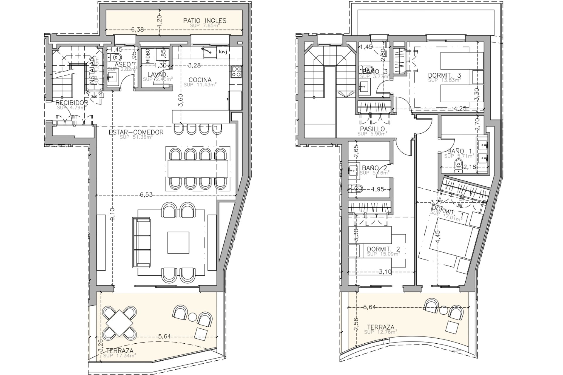
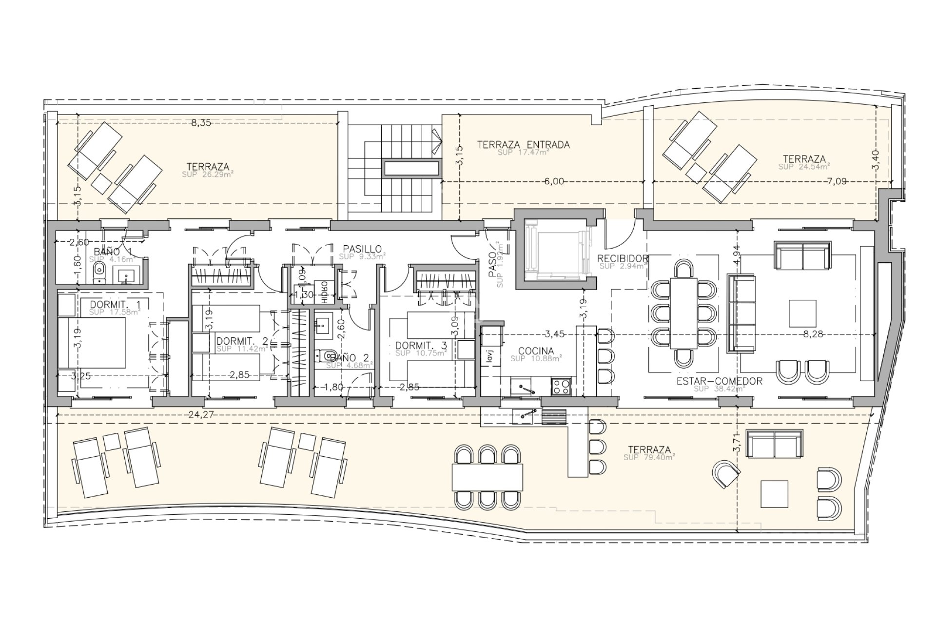
Fastigheterna i denna nya urbanisering erbjuder lägenheter och takvåningar med tre sovrum som omdefinierar den medelhavska livsstilen med ett privilegierat läge vid Costa del Sol. Sittandes i den övre delen av området är denna plats idealisk för de som söker ett exceptionellt boende i en lyxig miljö. Omgiven av mer än 70 golfbanor och med 300 soldagar per år, är klimatet gynnsamt med en genomsnittstemperatur på 20 ºC samt tillgång till ett brett utbud av kultur-, sport-, fritids- och kulinariska aktiviteter. Detta moderna projekt, med erhållen bygglicens och för närvarande under konstruktion, är designat för att erbjuda maximal bekvämlighet och säkerhet. Det erbjuder exceptionella gemensamma utrymmen, inklusive pool, trädgårdar, coworking-område för moderna yrkesverksamma och ett välutrustat gym. Dessutom kommer komplexet att erbjuda konstant övervakning med kameror och conciergeservice. Bostäderna utmärker sig genom sin eleganta och bekväma design, med stora fönster och terrasser som erbjuder spektakulära vyer över omgivningarna. De öppna köken är utrustade och kan anpassas helt efter dina preferenser, med ett flertal stilar och kvalitativa ytskikt tillgängliga. Arkitekturen hos dessa bostäder främjar ljusa och öppna utrymmen, idealiska för att njuta av ett av världens bästa platser. Dessa fastigheter, med en prisspann från 650 000 € till 1 495 000 € och ytor som varierar från 103 m² till 201 m², erbjuder en unik möjlighet att maximera njutningen av Marbellas livsstil.