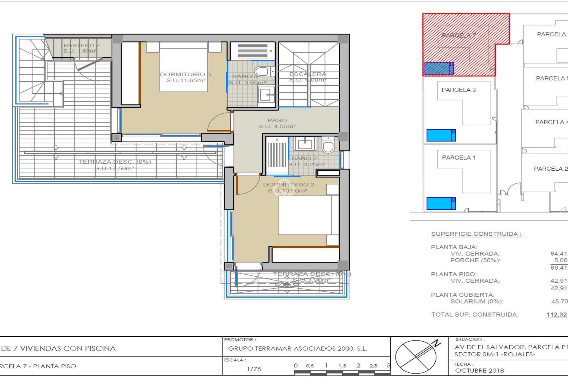
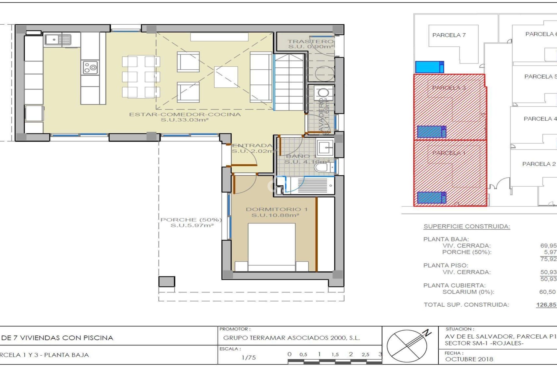
Laadukkaat asunnot luonnonkauniissa ympäristössä – Nämä upeat erilliset huvilat sijaitsevat Rojales, yhdessä Costa Blanca Surin halutuimmista alueista. Modernin ja tyylikkään suunnittelun ansiosta nämä kodit sopivat luksuskotia etsiville joko vakituiseksi asunnoksi tai lomakodiksi. Villoilla on erinomainen sijainti luonnonkauniissa ympäristössä lähellä suolajärviä, mikä luo ainutlaatuisen mikroilmaston ja takaa erinomaisen elämänlaadun ympäri vuoden. Asukkailla on valittavanaan kahdenlaisia huviloita, jotka vastaavat erilaisia tarpeita ja elämäntyylejä: Kahden kerroksen villat, joissa on 3 kahden hengen makuuhuonetta ja 3 kylpyhuonetta.Yhden kerroksen villat, joissa on 3 makuuhuonetta ja 2 kylpyhuonetta. Kaikissa kodeissa on: Oma kattoterassi, joka on täydellinen auringon ja panoraamanäkymien nauttimiseen.Yksityinen uima-allas ja kaunis puutarha rentoutumiseen ja viihtymiseen.Yksityinen pysäköintipaikka. Kohteessa on myös täysin varusteltu näyttelytalo, jossa voit itse nähdä materiaalien laadun ja ylelliset viimeistelyt. Nämä villat on suunniteltu maksimaalista mukavuutta ja energiatehokkuutta silmällä pitäen: Täysin varustettu keittiö kaikkine kodinkoneineen.Esiasennettu ilmastointi kanavien kautta.Avonaiset tilat ja suuret ikkunat, jotka tarjoavat erinomaisen luonnonvalon.Modernit viimeistelyt ja korkealaatuiset materiaalit kauttaaltaan. Rojales on vakiintunut alue, jolla on kaikki päivittäiset palvelut: kaupat, ravintolat, terveyspalvelut ja vapaa-ajanviettopaikat. Sieltä on myös nopea pääsy tärkeimpiin alueen kohteisiin: Guardamarin rannat – 5 km.Lähin supermarket – 500 m.Torreviejan sairaala – 6 km.Alicanten lentokenttä – 29 km. Jos etsit modernia huvilaa ainutlaatuisessa ympäristössä kaikkine mukavuuksineen ja lähellä merta, tämä on tilaisuutesi. Kysy lisää ja löydä uusi kotisi Costa Blancalla!