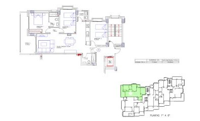
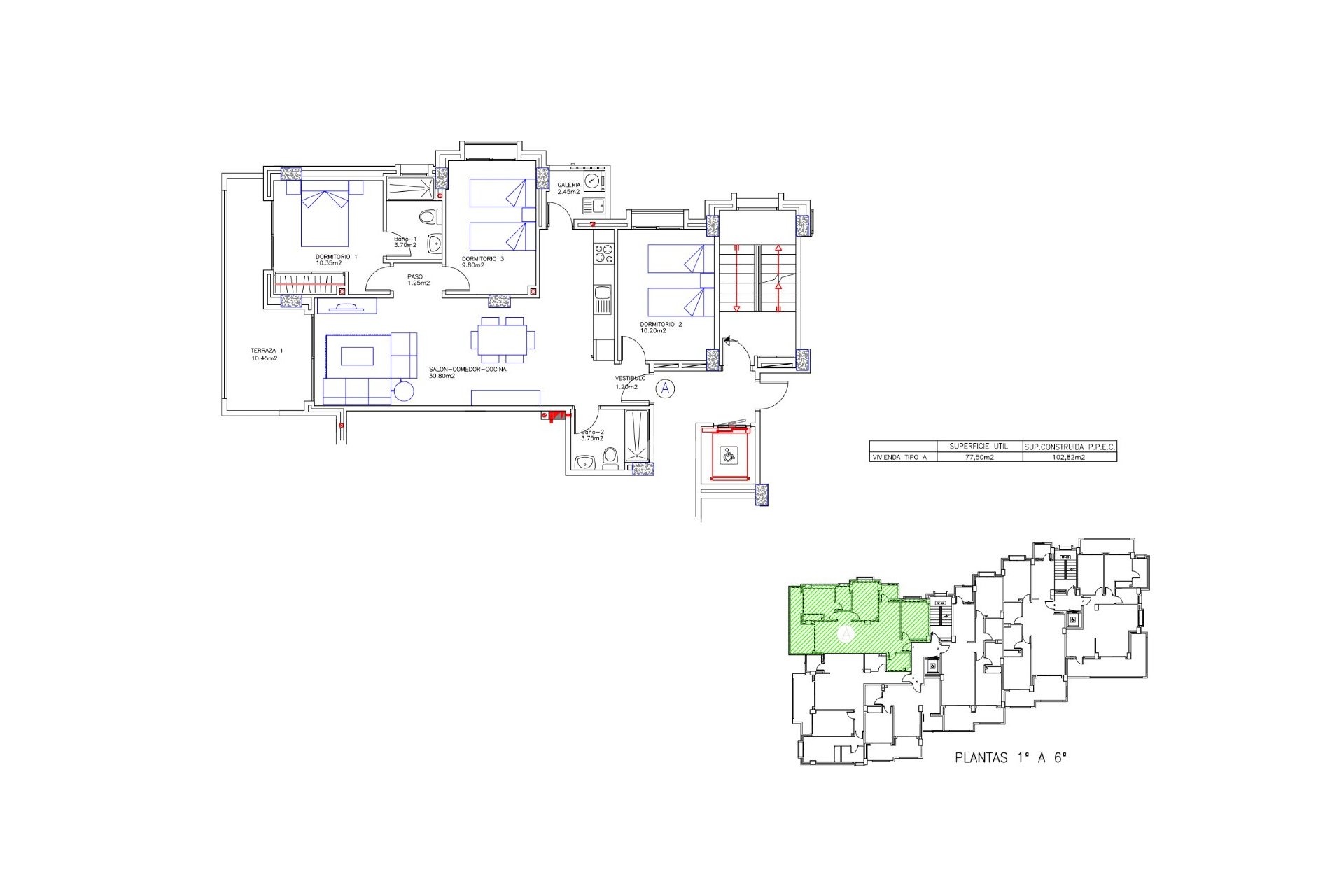
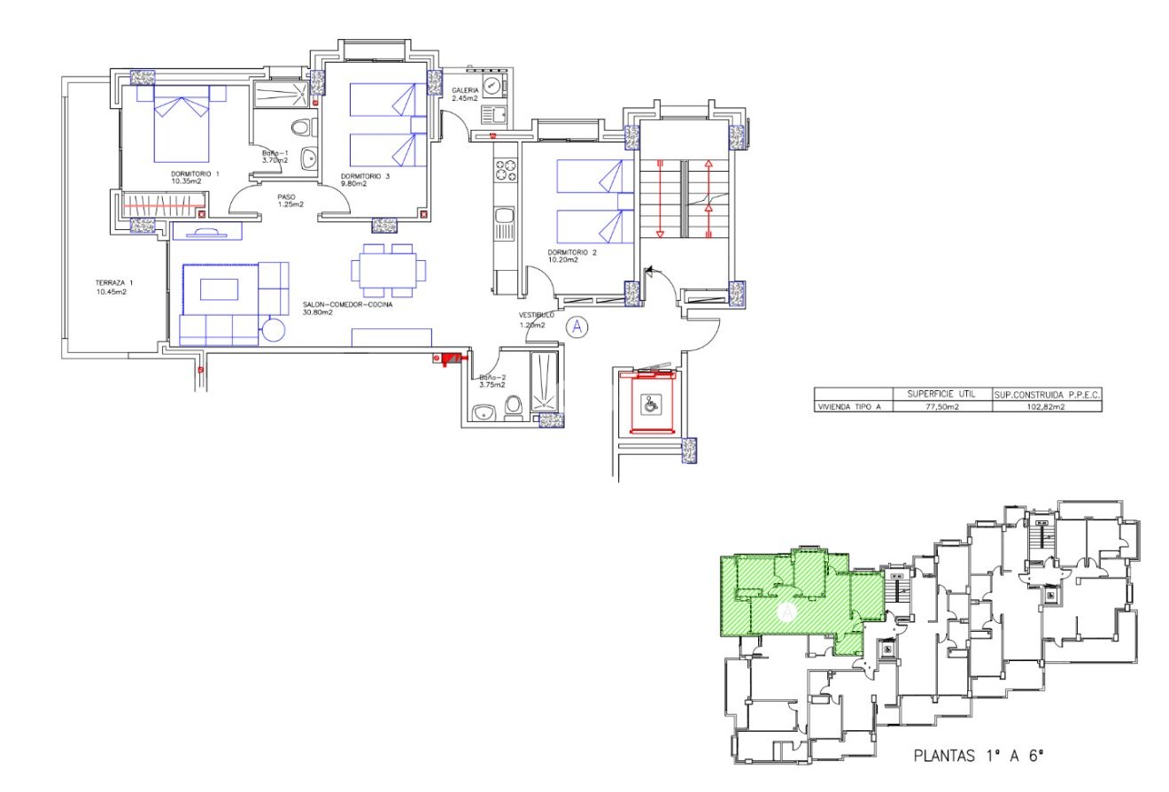
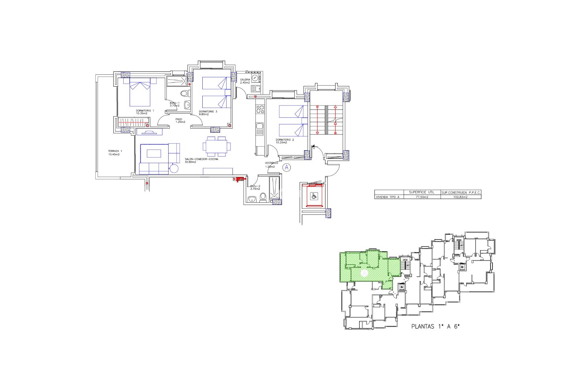
```fi Murciassa, La Manga Del Mar Menorin alueella sijaitseva asuinkompleksi tarjoaa valikoiman laadukkaita koteja, jotka tarjoavat mukavuutta ja tyyliä. Näiden asuntojen hinnat vaihtelevat 205 178 € - 240 052 € välillä. Kompleksista löytyy 2–3 makuuhuoneen koteja, joiden pinta-ala on 97 m² - 102 m², mikä mahdollistaa tilat erilaisiin perhetarpeisiin. Kipsilevyseinät takaavat hyvän ääniympäristön ja täystiiliseinät asuntojen välillä varmistavat tehokkaan eristyksen. Kipsilevyistä valmistettu alaslaskettu katto helpottaa ilmastointilaitteiden huoltoa ja mahdollistaa asennusten joustavan hallinnan. Gres-lattiat ja -laatoitukset ovat kestäviä ja helposti puhdistettavia, kun taas sileä muovimaalipinta antaa yhtenäisen ja elegantin lopputuloksen. Valkoiset PVC-ikkunat ja kaksinkertainen lasitus, integroiduilla kaihtimilla, tarjoavat erinomaisen lämpö- ja äänieristyksen. Sisäpuolen ovet ovat teräskarmilla vahvistettuja, mikä lisää turvallisuutta ja esteettisyyttä. Makuuhuoneissa on tilavat liukuovikaapistot, joissa on säilytystä helpottavat tankot ja hyllyt. Keittiöt on täysin varustettu moderneilla kalusteilla, laitteilla ja kvartsitasoilla, jotka yhdistävät käytännöllisyyden ja kestävyyden. Kylpyhuoneet on varustettu laadukkailla hanamerkeillä, jotka tarjoavat kestävää mukavuutta. Sähkölaitteet, kuten TV- ja puhelinpistokkeet olohuoneessa ja päämakuuhuoneessa, varmistavat hyvän yhdistettävyyden. Ilmastoinnin esiasennus mahdollistaa tehokkaan huonekohtaisen lämpötilasäädön, jotta voit nauttia täydellisestä mukavuudesta ympäri vuoden. Asunnot valmistuvat lokakuussa 2025, tarjoten ainutlaatuisen mahdollisuuden nautiskella uudisrakennuksen eduista erinomaisella paikalla. ```