Imponerande villa belägen på en hörntomt om 1 185 m², direkt framför Villamartíns golfbana – i ett av Costa Blancas mest eftertraktade områden. Bostaden erbjuder en utmärkt kombination av rymd, funktionalitet och ett förstklassigt läge.
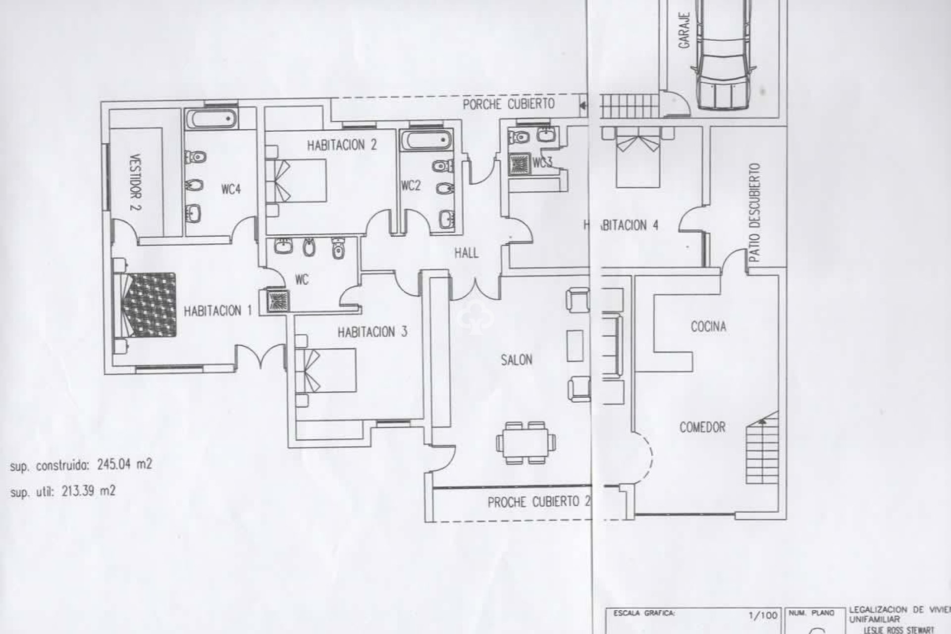
Planlösningen är tydlig och lätt att röra sig i. Sovrummen och badrummen är ovanligt rymliga, vardagsrummet är stort och ljust, och köket är generöst tilltaget, separat och fullt utrustat. Gott om naturligt ljus flödar genom hela bostaden. Villan genomgick en omfattande renovering år 2004, men är nu i behov av viss uppdatering.
Viktiga egenskaper:
– 4 mycket rymliga sovrum
– 4 stora badrum
– Byggyta 245 m²
– Tomt 1 185 m²
– Stor uppvärmd pool för användning året runt
– Täckta terrasser och BBQ-område, perfekt för umgänge
– Vacker och välskött medelhavsträdgård
– Privat garage, grindförsedd infart och hög grad av avskildhet
– Hörntomt med öppna vyer
– Solarium (takterrass)
– Luftkonditionering
Utmärkt läge nära Villamartín Golf Club, köpcentret La Zenia Boulevard, stränderna på Orihuela Costa, restauranger, livemusikställen och kollektivtrafik.
En idealisk bostad som familjehem, exklusivt fritidsboende eller en stark investering i ett attraktivt område.
Kontakta oss så ordnar vi ett besök eller en presentation på distans.
Riikka Aukee, +34 640 609 863, riikka.aukee@spkoti.fi