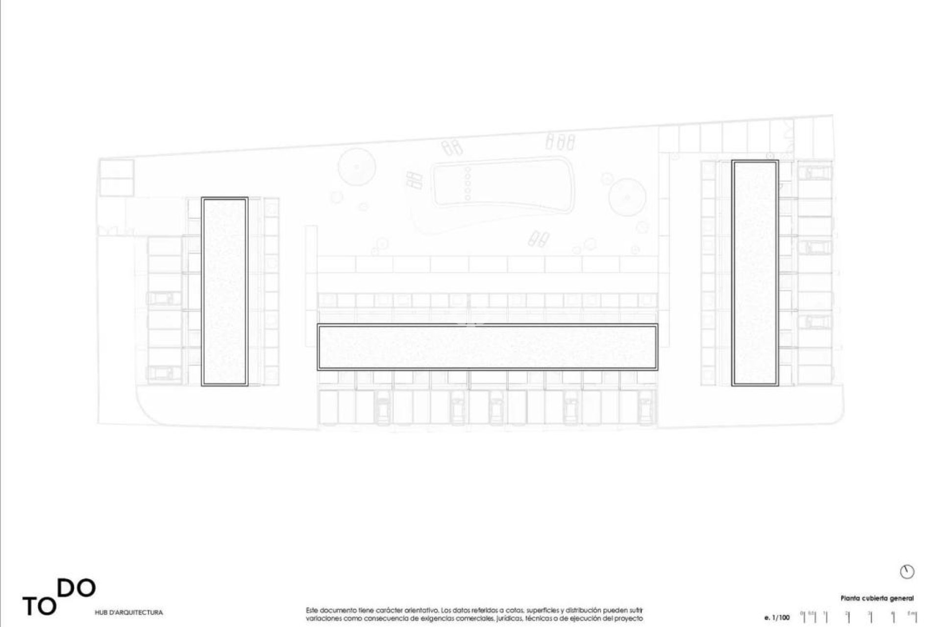
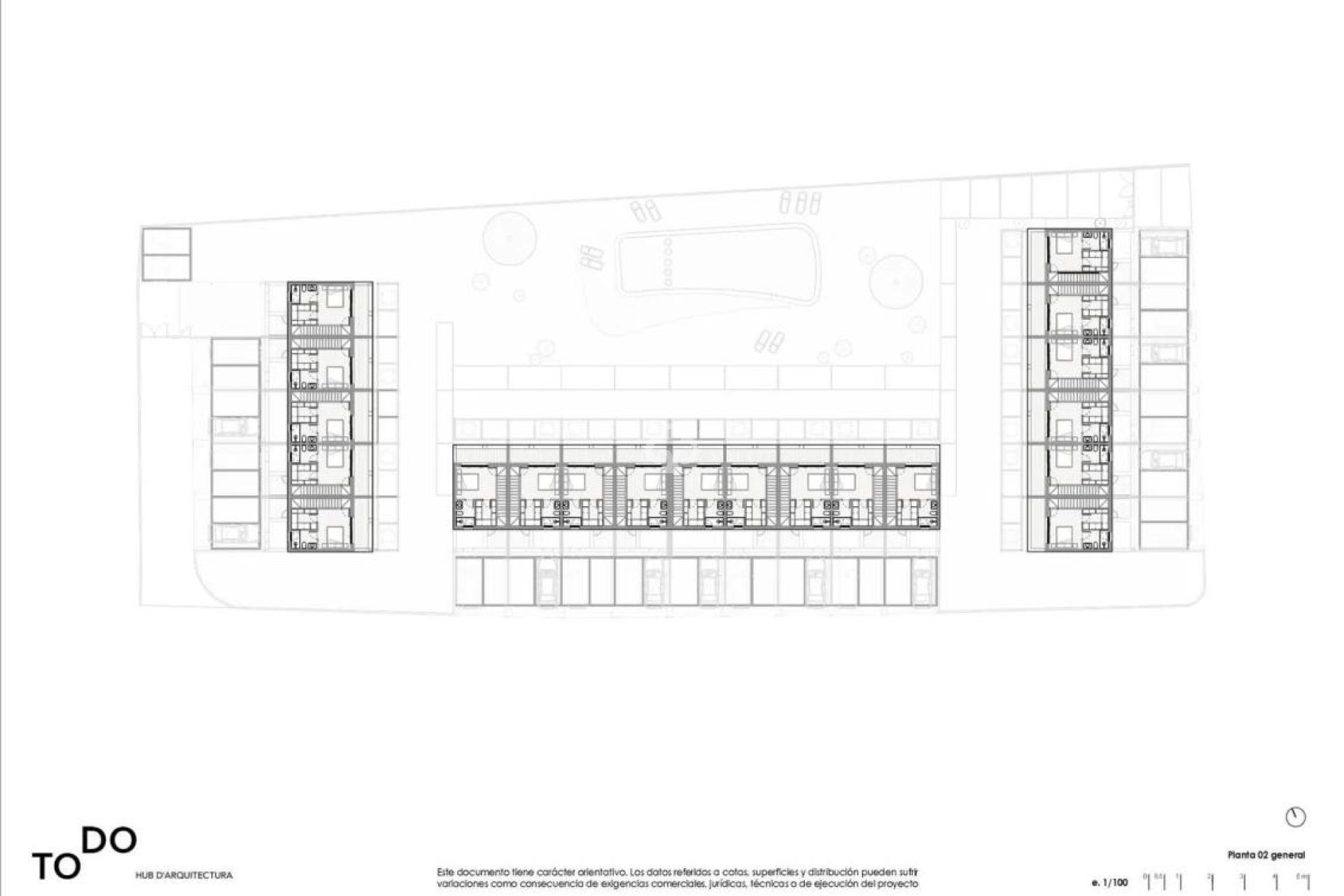
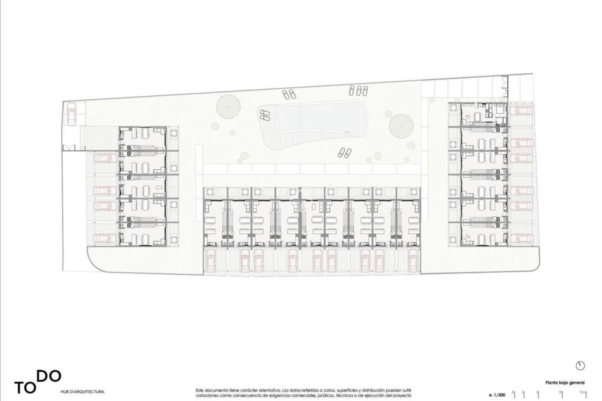
Disfruta viviendo a pocos pasos del Mediterráneo en una propuesta única de hogares en una ubicación privilegiada de Denia. Aquí, la serenidad, el estilo moderno y la esencia mediterránea se combinan en un ambiente excepcional. Este proyecto privado incluye 20 viviendas adosadas distribuidas en tres plantas, diseñadas para maximizar el confort. Cada hogar ofrece amplias terrazas en cada nivel, un jardín privado con acceso directo a la piscina comunitaria, y una plaza de garaje cubierta que está incluida en el precio. En la planta baja, la distribución abierta integra el salón-comedor con una cocina americana completamente equipada, bañada por luz natural y con acceso directo a la terraza y jardín. También dispone de un baño de cortesía. La primera planta cuenta con dos dormitorios, uno de ellos con balcón, y un baño completo. En la planta superior, el dormitorio principal dispone de un espacioso vestidor, baño en suite, y una terraza privada ideal para el descanso. Las áreas comunes están diseñadas para promover la convivencia y bienestar, con jardines que crean un entorno cálido y accesible. A solo cinco minutos a pie de la espléndida playa de Les Deveses, conocida por sus dunas naturales y ambiente perfecto para deportes acuáticos, el complejo ofrece una vida vibrante y relajada. Además, está rodeado de chiringuitos, restaurantes, supermercados y un gran centro comercial con todos los servicios necesarios. Los aficionados al golf encontrarán el club de Oliva Nova a pocos minutos, al igual que las rutas de senderismo en Sierra Segària y el Montgó. Con magníficas conexiones viales, Denia y su puerto, con conexión a las Baleares, están a solo 20 minutos en coche. Las viviendas están programadas para entregarse en abril de 2026. Si buscas un hogar donde la naturaleza, el diseño moderno y la comodidad coexistan en un entorno sin igual, esta es tu oportunidad. ¡No dejes pasar esta exclusiva opción en Denia!