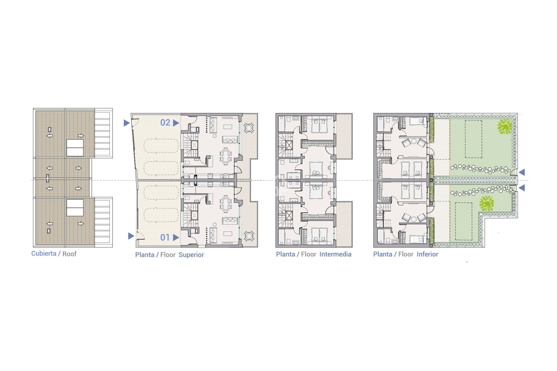
En La Nucia, Alicante, se abre una nueva oportunidad para disfrutar de un rincón exclusivo del Mediterráneo con vistas panorámicas impresionantes. Este desarrollo ofrece una serie de viviendas diseñadas siguiendo altos estándares y certificadas por expertos. La propiedad combina la esencia del diseño contemporáneo con el encanto mediterráneo, en un ambiente moderno y sereno. Con un precio que oscila entre 449 000 € y 517 000 €, las viviendas destacan por su calidad y estilo, ofreciendo superficies de 161 m² a 169 m². Estas propiedades, en plena construcción y con finalización prevista para el cuarto trimestre de 2025, son un ejemplo de la perfecta fusión entre estética moderna y funcionalidad práctica. Cuentan con 4 dormitorios, una cocina americana, y superficies optimizadas a 164 m². Los espacios interiores están diseñados para maximizar la luz natural, rodeados de zonas verdes que encapsulan la esencia de la naturaleza circundante. El compromiso con la sostenibilidad es evidente, con prácticas eficientes en el uso de energía y agua integradas en cada aspecto del diseño. La vida en La Nucia promete ser cómoda y segura, ofreciendo un entorno que permite disfrutar de la serenidad sin perder acceso a las comodidades modernas. Con áreas ajardinadas, piscina, solárium y vistas al mar incluidas, cada vivienda ofrece un refugio perfecto para quienes buscan un equilibrio entre tranquilidad y lujo. No pierdas la oportunidad de formar parte de este exclusivo y único desarrollo en La Nucia.