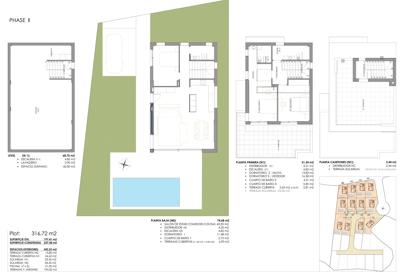
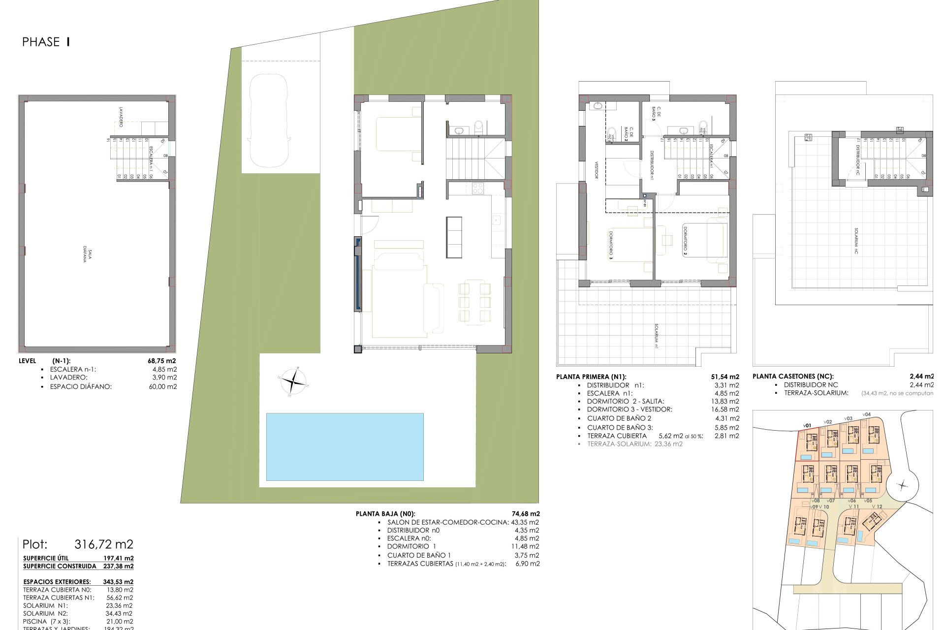
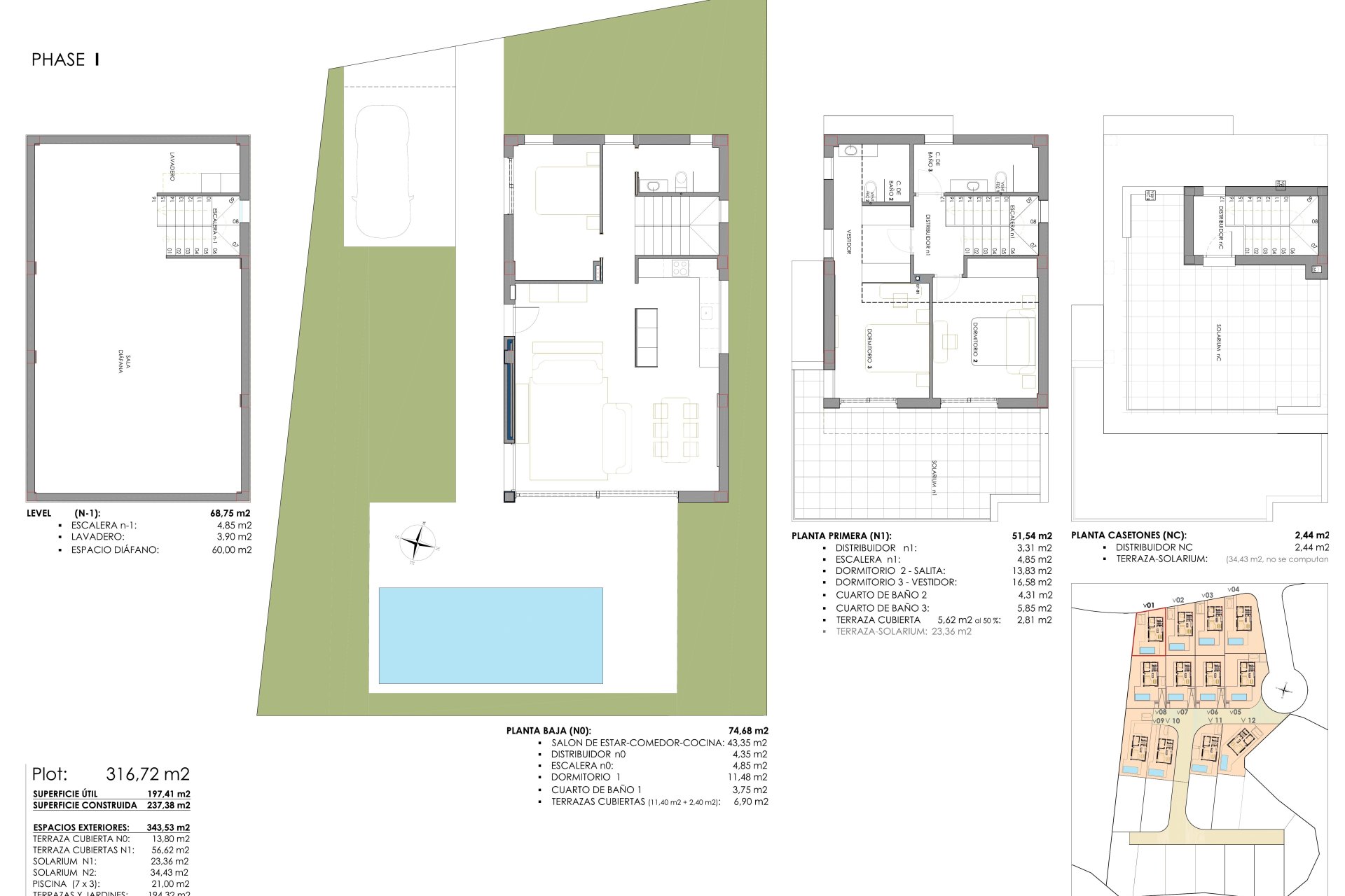
Entdecken Sie ein aufregendes Wohnprojekt: 24 neu gebaute Villen stehen zur Auswahl, bei denen zukünftige Eigentümer aus verschiedenen Modellen wählen und ihr Zuhause ganz nach ihren Wünschen und Bedürfnissen gestalten können. Die Standardvilla bietet 126 m² Wohnfläche, verteilt auf zwei Etagen, auf Grundstücken zwischen 304 und 472 m². Im Erdgeschoss befindet sich ein großzügiger Wohnbereich mit integrierter Küche, ein großes Schlafzimmer mit Einbauschrank und ein komplettes Badezimmer. Sowohl vom Wohnzimmer als auch vom Schlafzimmer gelangt man direkt in den Garten und zum Pool. Im Obergeschoss befinden sich zwei zusätzliche Schlafzimmer, eines mit Einbauschrank und das andere mit begehbarem Kleiderschrank und eigenem Bad. Zusätzlich gibt es ein drittes vollwertiges Badezimmer. Beide Schlafzimmer haben Zugang zu einer großen, sonnigen Terrasse, die beeindruckende Aussichten auf die Umgebung und das Mittelmeer bietet. Interessierte Käufer haben die Möglichkeit, ihre Villa mit einem geräumigen Keller zu erweitern, der als zusätzlicher Wohnraum, Schlafzimmer, Fitnessraum, Weinkeller oder als große Garage für mehrere Autos genutzt werden kann. Zudem besteht die Möglichkeit, eine großzügige Dachterrasse anzufügen, die mit Liegestühlen, einem Jacuzzi und einem Chill-out-Bereich ausgestattet ist, um die Panoramaausblicke zu genießen. Zu den Ausstattungsmerkmalen der Villen gehören Duschabtrennungen, Fußbodenheizung in den Bädern, ein Aerothermiesystem für warmes Wasser, Haushaltsgeräte, eine Klimaanlage durch Kanäle und ein motorisiertes Tor zum Parkplatz. Eine Villa ist sofort verfügbar, während andere mit voraussichtlichem Übergabedatum im Juli 2024 planbar sind. Diese exklusiven Neubauten bieten nicht nur modernen Komfort und individuelle Gestaltungsmöglichkeiten, sondern auch energiesparende Technologien und luxuriöse Extras wie Fußbodenheizung und hochwertige Klimaanlagen, die das Wohnerlebnis nachhaltig verbessern. Der Wohnkomplex ist in der Nähe von San Miguel de Salinas gelegen. Hier finden Sie sämtliche Annehmlichkeiten wie Supermärkte, erstklassige Restaurants und Schulen. Die Nähe zu renommierten Golfplätzen und den schönen Sandstränden der Region macht diesen Standort besonders attraktiv.