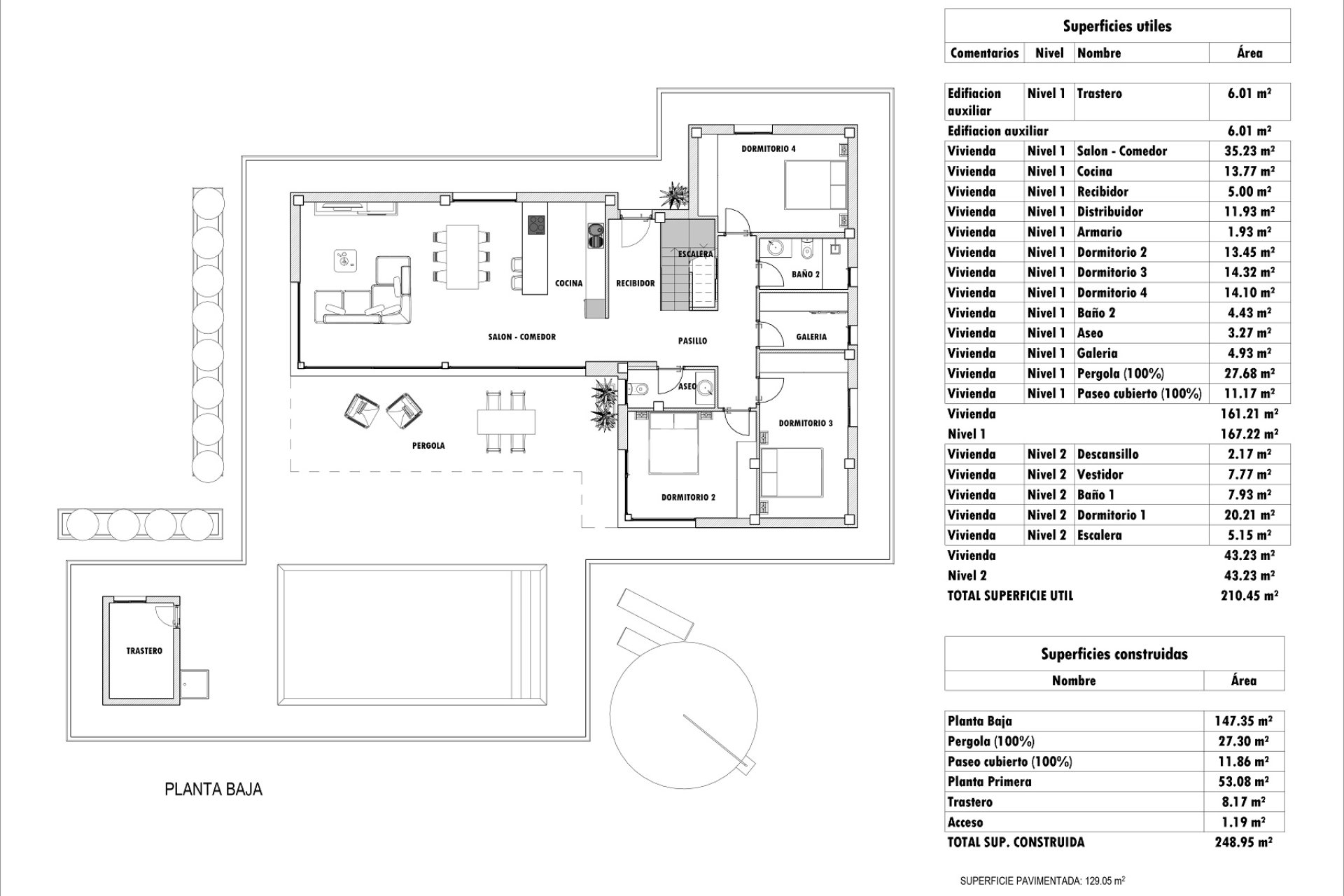
Erleben Sie das ländliche Leben in La Romana mit diesen atemberaubenden Villen auf Grundstücken von mindestens 10.000 m². Sie haben die Wahl zwischen zwei bezaubernden Designs: modern oder traditionell spanisch, jeweils sorgfältig gestaltet, um Ihren Bedürfnissen und Vorlieben gerecht zu werden. Diese modernen Anwesen verfügen über 2 bis 3 Schlafzimmer und 2 Badezimmer, ausgestattet mit Einbauschränken für zusätzlichen Komfort. Der Garten, der die Immobilie umgibt, ist mit dekorativem Beton und 15 m² Kunstrasen gestaltet, was für einen pflegeleichten Außenbereich sorgt. Genießen Sie die Entspannung in Ihrem privaten Pool mit den Maßen 8x4 Meter, der mit einer praktischen Außendusche ausgestattet ist. Das 2.500 m² große Grundstück ist vollständig mit Maschendraht und einer Steinmauer eingefriedet, um Privatsphäre und Sicherheit zu gewährleisten. Der Zugang erfolgt über ein elektrisches Tor für Fahrzeuge sowie eine separate Fußgängerpforte. Die Nachhaltigkeit und der Komfort standen bei der Planung im Vordergrund: Die Villen sind mit einer Vorinstallation für Solarpaneele und einem gemütlichen Kamin im Wohnzimmer vorbereitet. Die Badezimmer und die Küche sind vollständig fertiggestellt, Sie müssen lediglich die Elektrogeräte Ihrer Wahl hinzufügen.