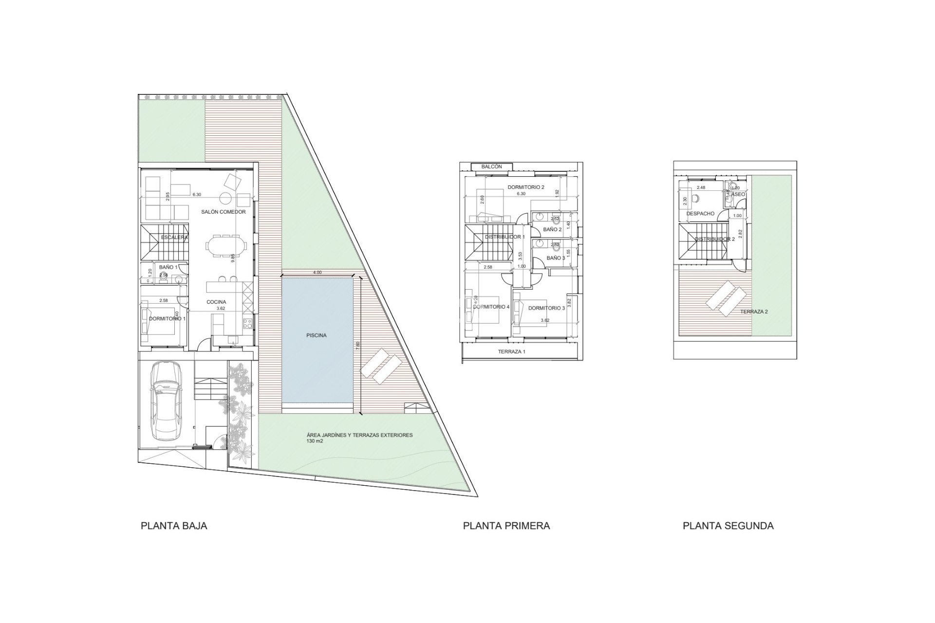
In der malerischen Gegend von Estepona, in der Nähe von Calle Mencia Calderon, erwartet Sie ein exklusives Projekt mit zehn Reihenhäusern. Die sorgfältig ausgewählte Lage bietet atemberaubende Ausblicke auf das Meer, die Golfplätze und die Berge. Diese Neubauten verfügen über 4 Schlafzimmer und bis zu 4 Badezimmer, je nach Layout. Außerdem können zusätzliche Räume als Büro oder Hauswirtschaftsraum genutzt werden. Die Eckhäuser dieses Projekts bestechen durch private Gärten und eine eigene Salzwasserpoolanlage, während die zentralen Villen über eine Dachterrassen-Poolanlage verfügen. Offene und funktionale Räume stehen im Mittelpunkt der Architektur und verbinden sie mit Terrassen, die wunderbare Ausblicke auf das Meer, den Golfplatz und die umliegenden Berge bieten. Das Design setzt sich aus drei Materialien zusammen, die Ästhetik und Funktionalität harmonisch vereinen. Die weißen Fassaden vermitteln ein Gefühl von Sonne und Strand, während dunkle graue Steinelemente Tiefe hinzufügen. Vertikale Aluminium-Details in Holzoptik sorgen für ein warmes Ambiente. Diese pflegeleichten Materialien schaffen nicht nur einen beeindruckenden visuellen Effekt, sondern auch eine harmonische Eingliederung in die natürliche Umgebung. Estepona, bekannt für sein angenehmes Klima und seine charmante Atmosphäre, bietet die perfekte Kulisse für einen luxuriösen Lebensstil. In der Preisklasse von 730 000 € bis 940 000 € bieten diese Häuser großzügige Wohnflächen zwischen 179 m² und 222 m² und stellen somit eine hervorragende Investition in der Region dar.